Appartamento a Bologna
600.000 €
-
- Bologna
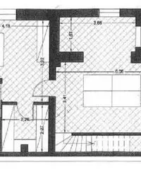
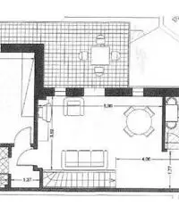
Saragozza Ad.ze Collegio di Spagna immobile liberty appartamento nuova costruzione su due livelli doppio ingresso doppio salone cucina abitabile terrazzino abitabile 2 camere 2 bagni volendo garage 60.000 euro riscaldamento a pavimento climatizzazione, produzione dacqua calda a pannelli solari costruzione anti sismica affittato a euro 1.850 mensili Agenzia Rubini G. telefoni 051227648 - 3496171619 - SC1859813
Contatta
Nome: Agenzia Rubini G.
600.000 €
Invia messaggioSolo per utenti registrati Inserito il 2022/06/12
Aggiungi un commento pubblico...
Annunci correlati
-
Appartamento in Vendita - Centro Storico
990.000 € Case - Appartamenti in Vendita Bologna 2022/06/12via Borgolocchi nuovo da impresa consegna Marzo 2015 prestigioso appartamento con giardino privato f...
-
Villa in Vendita di 556mq
Case - Appartamenti in Vendita Bologna 2022/06/12inizio via dellOsservanza a due passi da porta San Mamolo villa primi 900 costituita da 4 appartamen...
-
Bologna: Appartamento 5 Locali o piu
1 € Case - Appartamenti in Vendita Bologna 2022/06/12via Valdonica in palazzo storico del 1400 appartamento mq 150 superficie calpestabile + soffitta mq ...


