appartamento Sotto il Monte mq 77 Euro 140.000
-
- Pontida, Bergamo, Italy
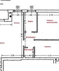
offro appartamento Sotto il Monte mq 77 Euro 140.000 OCCASIONE! In elegante palazzina proponiamo spazioso trilocale all'ultimo piano. Ingresso, cucina, soggiorno con balcone, due camere, disimpegno, ripostiglio. Box nel piano interrato. Aria condizionata. Vista impagabile. Resta incluso nel prezzo l'arredo della cucina e l'autorimessa nel piano interrato. Classe D (99,93 kwh/m2a). Costruzioni Agazzi srl 035/791672. Per altre proposte visitate il nostro sito www.costruzioniagazzi.it Pontida (BG)
Contatta
Annunci correlati
-
APPARTAMENTO di 3 vani e di 106 mq (GRUMELLO DEL MONTE) rif. 598
185.000 € Case - Appartamenti in Vendita Grumello del Monte (Bergamo) 2022/06/18Rif. 598 - GRUMELLO DEL MONTE: Bellissimo TRILOCALE IN VILLA DI 109 MQ in vendita ad ?. 185.000,00 L...
-
Alzano Lombardo Centro - Monolocale Ristrutturato:
32.000 € Case - Appartamenti in Vendita Alzano Lombardo (Bergamo) 2022/06/18In stabile d'epoca situato nel centro storico, grazioso monolocale mq. 30 Completamente ristrutturat...
-
Alzano Lombardo Centro - Monolocale Ristrutturato:
32.000 € Case - Appartamenti in Vendita Alzano Lombardo (Bergamo) 2022/06/18Alzano Lombardo Centro - Monolocale Ristrutturato: In stabile d'epoca situato nel centro storico, gr...


