Bologna: Rustico Altro
600.000 €
-
- Bologna
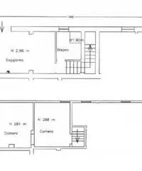
Comune di Sasso Marconi - via Ancognano - porzione di fabbricato in contesto ex colonico non isolato, appartamento su due livelli composto da ingresso su soggiorno con cucina arredata e camino, bagno, due camere al piano primo. Giardino privato di pertinenza e ampio giardino condominiale. - SC2941990
Contatta
Nome: STUDIO AESSE
600.000 €
Invia messaggioSolo per utenti registrati Inserito il 2022/06/12
Aggiungi un commento pubblico...
Annunci correlati
-
Vendita Appartamento a San Prospero
118.000 € Case - Appartamenti in Vendita Modena 2022/06/12A300 - San Prospero (MO) Appartamento in piccola palazzina al Primo piano senza ascensore zona molto...
-
Appartamento in Affitto di 45mq
490.000 € Case - Appartamenti in Vendita Bologna 2022/06/12Massarenti (verso via Larga) si affitta appartamento nuovo completamente arredato composto da ingres...
-
Bologna: Appartamento 5 Locali o piu
1 € Case - Appartamenti in Vendita Bologna 2022/06/12Porta San Mamolo in palazzina liberty si affitta DAL 1° NOVEMBRE appartamento prestigioso super rifi...


