Tarvisio: Appartamento 4 Locali
-
- Udine
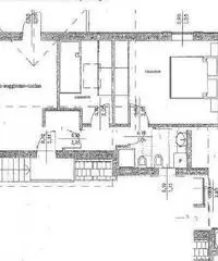
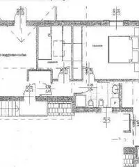
>RESIDENCE ALPI GIULIE - UNITA G1 Appartamento bicamere, piano I, 4 vani con due terrazzi, superf. 65 m2 circa piu: cantina e posto auto coperto. Composizione: ingresso, soggiorno con angolo cottura, disimpegno, una camera matrimoniale e una singola, un bagno finestrato con vasca o doccia.Classe energetica: A Casa in legno di 8 unita ad alto risparmio energetico di nuova costruzione a Tarvisio, lungo la strada principale di ingresso al paese, in ottima posizione rispetto agli impianti da sci e ai servizi Il sistema di riscaldamento del Residence Alpi Giulie e garantito grazie a una sonda geotermica verticale (pozzo con profondita metri 90 circa) accoppiata ad una pompa di calore e tramite pavimenti riscaldanti a bassa temperatura. Questa installazione, fornisce acqua calda sanitaria ad una temperatura di 55°-60° C. Questa soluzione garantisce leliminazione dei costi di combustibile e limita fortemente quelli di manutenzione, evitando le emissioni di CO2. Classe Energetica: A - SC737190
Contatta
Annunci correlati
-
Appartamento in Vendita di 98mq
250.000 € Case - Appartamenti in Vendita Udine 2022/06/12Classe energetica: A> DESCRIZIONE GENERALE Casa in legno di 8 unita ad alto risparmio energetico ...
-
Appartamento in Vendita in trattativa riservata
Case - Appartamenti in Vendita Udine 2022/06/12Ampio bicamere al piano terra in nuova costruzione, con giardino recintato di mq 300 circa . Adatto ...
-
Casa indipendente in Vendita di 240mq
220.000 € Case - Appartamenti in Vendita Udine 2022/06/12In centro, antica casa su tre piani , con terreno e legnaia. Mq 80 per piano, riscaldamento autonomo...


