Terreno a Nola in provincia di Napoli
-
- Napoli
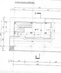
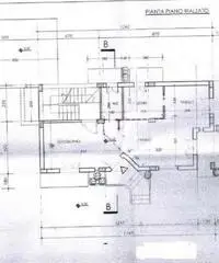
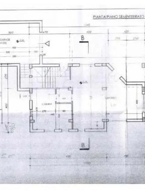
Posizione: Nola, zona centrale e residenziale Tipologia: lotto di terreno edificabile con permesso a costruire per villa indipendente sui quattro lati composta da tre livelli di circa 70 metri quadrati a livello. Note: il lotto di terreno e di circa 400 metri quadrati in zona ottimamente servita e di pregio della citta; note: contesto di grande valore per la forte presenza di proprieta indipendenti e a brevissima distanza ( percorribile anche a piedi) dallanello del centro storico di Nola Classe Energetica: G - SC2495379
Contatta
Annunci correlati
-
Affitto Appartamento a Nola
650.000 € Case - Appartamenti in Vendita Napoli 2022/06/12Posizione: Nola, in zona residenziale. Tipologia: in piccolo condominio e in contesto tranquillo tro...
-
Ufficio in Affitto - TUTTE
550.000 € Case - Appartamenti in Vendita Napoli 2022/06/12posizione: in luogo a ridosso della variante 7 bis in presenza di fabbricati con residenze e uffici;...
-
Villa in Vendita di 300mq
590.000 € Case - Appartamenti in Vendita Avellino 2022/06/12Proponiamo villa libera su 4 lati con giardino di mq 1200. Zona piano terra : box per almeno tre aut...


