Vendita Bilocale in via Mazzini 83
-
- Agrate Brianza, Monza
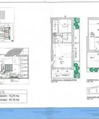
AGRATE NUOVE COSTRUZIONI CASA 7 rif: AGR CASA 7 - Agrate Brianza, in zona centrale appartamento di prossima costruzione di 2 locali oltre a sottotetto, giardini pensili, terrazzi e cantina. L'immobile, situato al 1° ed ultimo piano si presenta con ingresso privato, soggiorno con angolo cottura, accesso al terrazzo ed al balcone con giardini pensili, disimpegno, doppi servizi e camera matrimoniale con cabina armadio. Al piano sottotetto locale open space con terrazzo di mq 21 e giardino pensile. Ottime finiture. Impianto di riscaldamento con pompa di calore. Riscaldamento e raffreddamento a pavimento. Predisposizione impianto d'allarme. Codice di riferimento Agenzia: AGR CASA 7 (1674453)
Contatta
Annunci correlati
-
Vendita Bilocale in via Oberdan, 40
347.000 € Case - Appartamenti in Vendita Brugherio (Monza) 2022/06/22RESIDENZE DEL CENTRO - IN PRONTA CONSEGNA E LA CUCINA SU MISURA COMPRESA NEL PREZZO - In pronta cons...
-
Vendita Attico in via Monte Grappa
1.000 € Case - Appartamenti in Vendita Arcore (Monza) 2022/06/22rif: 03 - Arcore centro Via Montegrappa comodo per la stazione in stabile recente attico con ascenso...
-
Vendita Bilocale in Via Fratelli Cervi, 11
155.000 € Case - Appartamenti in Vendita Macherio (Monza) 2022/06/22In palazzina costruita nel 2008, bilocale posto al piano terra con giardino privato e taverna. L'ing...


