Affitto Laboratorio in via remesina
		
          400 €          		
- 
          - Carpi, Modena
 
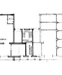
In zona remesina di Carpi affittiamo Laboratorio al piano terra in contesto condominiale. L'immobile necessita di qualche opera di ristrutturazione, ha una superficie di circa 100 mq, riscaldamento autonomo e posti auto in cortile condominiale. Ideale come òaboratorio, magazzino o deposito. Richiesta mensile € 400 per informazioni contattare Immobiliare DIERRE 059.69.00.29 info@immobiliaredierre.eu Codice di Riferimento Agenzia: LA303
Contatta
Nome:  Agenzia
		
          400 €          		
        Invia messaggioSolo per utenti registrati Inserito il 2022/07/04		
            Aggiungi un commento pubblico...
        
        Annunci correlati
- 
    Affitto Laboratorio in Via Magazzeno600 € Uffici e Locali commerciali Carpi (Modena) 2022/07/04L600: CARPI NORD, IN ZONA MAGAZZENO, DISPONIAMO IN LOCAZIONE DI IMMOBILE COMMERCIALE AD USO LABORATO... 
- 
    Affitto Capannone in Via Geminiola2.800 € Uffici e Locali commerciali Carpi (Modena) 2022/07/04Carpi - Zona Industriale - Affittasi 2 capannoni comunicanti, entrambi di 650 mq, altezza 6 mt, entr... 
- 
    Affitto Laboratorio da 135mq600 € Uffici e Locali commerciali Carpi (Modena) 2022/07/04Carpi-Proponiamo in affitto laboratorio con due vetrine fronte strada, il locale è composto da unico... 
 
  
 

