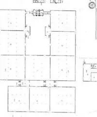
Vendita Capannone in Via Guido Rossa
-
- Liscate, Milano
Capannone mq 39.000 a Liscate. Vendiamo a reddito complesso immobiliare composto da area con sovrastante complesso immobiliare a destinazione industriale costituito da: fabbricato denominato A posto al piano terra, avente la forma in pianta ad u, composto da 9 porzioni di capannone oltre a 2 stazioni di carico/scarico merci e 4 centrali termiche - fabbricato denominato B posto al piano terra, composto da 3 porzioni di capannone oltre a 2 stazioni di carico-scarico merci, che rendono comunicante il corpo b con il corpo a, e 6 centrali termiche; fabbricato denominato C posto al piano terra, composto da 1 capannone isolato suddiviso internamente in 2 porzioni oltre a servizi igienici, spogliatoi, locali tecnici e 1 centrale termica. Prezzo di vendita € 24.684.000 anno di costruzione 1983. contattaci ora al numero tel. 0266401054 . sito web: http://www.deltaconsult.it email: info@deltaconsult.it . delta consult srl gli specialisti degli immobili industriali , commerciali e artigianali. Codice di Riferimento Agenzia: 444 -(52706985)
Contatta
Annunci correlati
-
Vendita Capannone in via Via Redecesio
1.800.000 € Uffici e Locali commerciali Segrate (Milano) 2022/07/04Rif: 6114UF68888 - SEGRATE - VENDITA - CAPANNONE CON UFFICI MQ. 2.500 CA. In zona industriale, nelle...
-
Vendita Capannone in Via Italo Calvino
350.000 € Uffici e Locali commerciali Rho (Milano) 2022/07/04(CAPANNONE DI 291 MQ - NUOVA COSTRUZIONE) Il capannone si trova nella zona industriale di Rho (MI), ...
-
Vendita Capannone in via Primo Maggio 41
1.100.000 € Uffici e Locali commerciali Pioltello (Milano) 2022/07/04Oggetto della presente risulta un'unità immobiliare a parte di un complesso edilizio più vasto di cu...


