Mansarda a Bologna
-
- Bologna
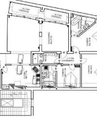
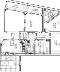
adiacenze via Di Frino palazzo liberty mansarda panoramica ristrutturata laltezza dei soffitti minima mt. 1,60 massima mt 3,90. impianto di condizionamento allarmi interni ed esterni. doppio soggiorno terrazzo ad asola cucina abitabile 2 camere studio 3 bagni cantina posto auto scoperto lappartamento e locato al canone annuo di euro 36.000 scadenza contratto aprile 2015 ottime qualita luminoso vista triplice esposizione est sud ovest tranquillo posizione comoda a tutti i servizi Agenzia Rubini G. telefoni 051227648 - 3496171619 - SC2108193
Contatta
Annunci correlati
-
Appartamento a Bologna
600.000 € Case - Appartamenti in Vendita Bologna 2022/06/12Saragozza Ad.ze Collegio di Spagna immobile liberty appartamento nuova costruzione su due livelli do...
-
Appartamento in Vendita - Centro Storico
990.000 € Case - Appartamenti in Vendita Bologna 2022/06/12via Borgolocchi nuovo da impresa consegna Marzo 2015 prestigioso appartamento con giardino privato f...
-
Villa in Vendita di 556mq
Case - Appartamenti in Vendita Bologna 2022/06/12inizio via dellOsservanza a due passi da porta San Mamolo villa primi 900 costituita da 4 appartamen...


